Новая Рига

Загородная недвижимость

Жилой комплекс где учтено все

ЖК Первый Пионерский

Готовые дома и участки без подряда

115 м² - 260 м²

площадь домов

4,5 сот - 7,5 сот

площадь участков

от 18,5 млн руб

стоимость дома с участком

Обжитой поселок с современной архитектурой

Рядом с Истрой - самым чистым городом Подмосковья

ТИПОВЫЕ ПЛАНИРОВКИ ОБЪЕКТОВ

Коттедж 115 м2

Площадь от 115 м2

Стоимость от 18.500.000 руб

Прекрасный вариант компактного дома. На первом этаже - рабочий кабинет. Второй этаж с двумя уютными спальнями и полноценным санузлом. Видовые окна «в пол», веранда, возможность организовать террасу на крыше. Практичное использование пространства позволяет создать отличную альтернативу квартире, на свежем воздухе и со своим участком.

Пожалуйста укажите телефон
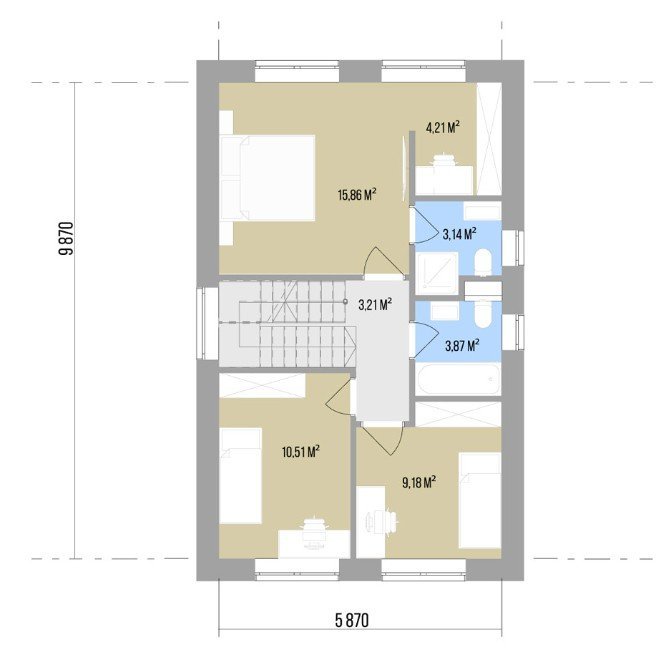
Коттедж 166 м2

Площадь от 166 м2

Стоимость от 28.000.000 руб

Планировка первого этажа включает большой холл, полноценный санузел с душевой кабинкой и постирочной зоной, гостиную-кухню-столовую и многофункциональную комнату, которая в базовом варианте представляет собой кабинет. Она не имеет прямого выхода в гостиную зону, а значит, хозяин дома может здесь спокойно работать и принимать посетителей, не нарушая покой других членов семьи. На втором этаже расположено 3 спальни, при этом главная — с собственным санузлом и гардеробной комнатой.

Пожалуйста укажите телефон
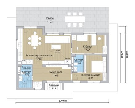
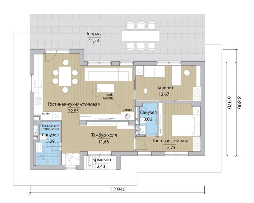
Коттедж 200 м2

Площадь от 200 м2

Стоимость от 24.020.239 руб

Планировка первого этажа включает большой холл, полноценный санузел с душевой кабинкой и постирочной зоной, гостиную-кухню-столовую и многофункциональную комнату, которая в базовом варианте представляет собой кабинет. Она не имеет прямого выхода в гостиную зону, а значит, хозяин дома может здесь спокойно работать и принимать посетителей, не нарушая покой других членов семьи. На втором этаже расположено 3 спальни, при этом главная — с собственным санузлом и гардеробной комнатой.

Пожалуйста укажите телефон
Коттедж 210 м2

Площадь от 210 м2

Стоимость от 25.986.000 руб

Идеален для большой семьи. На первом этаже один гостевой санузел и один полноценный, шикарная кухня-гостиная 46 метров с обеденным столом, барной стойкой и удобной мягкой зоной для приема большой и шумной компании. Тут же на первом этаже располагается просторная гостевая спальня, которая при желании может быть переоборудована в рабочий кабинет. На втором этаже мастер-спальня с большой гардеробной, 2 детские, просторная гостевая комната, два санузла и постирочная зона.

Пожалуйста укажите телефон

ЖК Первый Пионерский ЭТО

До Истры рукой подать - всего 1,8 км. А расстояние в 43 км от Москвы идеально, чтобы не ощущать суету и пыльный воздух мегаполиса, но при этом иметь возможность быстро добраться до центра. Широкие аллеи поселка, современные уличные фонари, парковый массив, ухоженный пруд, детские и спортивные площадки, кафе, магазин – все это создает отличные условия для отдыха или постоянного проживания.

Стильная современная архитектура, двухэтажные дома с удобными планировками, небольшие придомовые участки с готовым газоном и эстетичным ограждением удовлетворят выбор прагматиков – больше метров и комфорта за те же деньги, без лишних хлопот и затрат, здесь и сейчас.

Часть домов предлагается без отделки, что позволяет реализовать любой дизайнерский замысел, если на это есть время и желание. Видовые окна «в пол», веранда и возможность организовать террасу на крыше. Все дома построены на монолитном фундаменте с применением керамических блоков Kerakam.

Открыта продажа участков второй очереди поселка, без обязательного подряда, но с соблюдением требований по архитектурному стилю. Участки площадью 4-7 соток, цена от 4,7 млн. руб. за участок


ОНЛАЙН КОНСУЛЬТАЦИЯ

получите больше информации о проекте
и задайте свои вопросы

НЕ НАШЛИ ПОДХОДЯЩЕЕ?

Укажите параметры недвижимости и мы подберем варианты в течение дня бесплатно

Пожалуйста укажите телефон
Написать в мессенджер